Stopy

Stopy poziome małe

KER-75/8.61

Stopy poziome małe wykorzystywane są jako element składowy podparć ślizgowych oraz sprężynowych poziomych rurociągów energetycznych. Projektanci przewidzieli możliwość stosowania stóp dla rurociągów o średnicach zewnętrznych Dz od 13,5 mm do 57,0 mm i maksymalnej temperatury czynnika do 823K /550ºC/
Dla tego rodzaju stóp rozróżnia się wykonanie dla temperatury czynnika do 573K /300Cº/, do 723K /450ºC/ oraz do 823K /550ºC/.

Stopy niskie poziome

KER-75/8.62

Stopy niskie poziome wykorzystywane są jako element składowy zamocowań stałych podparć ślizgowych, kulkowych oraz sprężynowych poziomych rurociągów energetycznych. Projektanci przewidzieli możliwość stosowania stóp dla rurociągów o średnicach zewnętrznych Dz od 76,1 mm do 508,0 mm i maksymalnej temperatury czynnika do 573K /300ºC/.

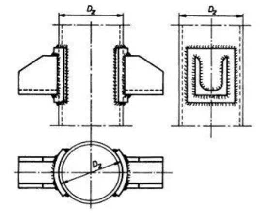
Stopy spawane poziome

KER-75/8.63

Stopy spawane poziome wykorzystywane są jako element składowy zamocowań stałych, podparć ślizgowych, kulkowych oraz sprężynowych poziomych rurociągów energetycznych. Projektanci przewidzieli możliwość stosowania stóp dla rurociągów o średnicach zewnętrznych Dz od 76,1 mm do 508,0 mm i maksymalnej temperatury czynnika do 573K /300ºC/.

Stopy skręcane poziome

KER-75/8.64

Stopy skręcane poziome wykorzystywane są jako element składowy zamocowań stałych oraz podparć ślizgowych, kulkowych oraz sprężynowych poziomych rurociągów energetycznych. Projektanci przewidzieli możliwość stosowania stóp dla rurociągów o średnicach zewnętrznych Dz od 76,1 mm do 508,0 mm i maksymalnej temperatury czynnika do 823K /550°C

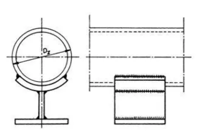
Stopy pionowe krótkie

KER-75/8.65

Stopy spawane pionowe krótkie wykorzystywane są jako element składowy zamocowań stałych oraz podparć ślizgowych pionowych, nieizolowanych rurociągów energetycznych. Projektanci przewidzieli możliwość stosowania stóp dla rurociągów o średnicach zewnętrznych Dz od 76,1mm do 508,0 mm i maksymalnej temperatury czynnika do 573K /300°C/.

Stopy spawane pionowe

KER-75/8.66

Stopy spawane pionowe wykorzystywane są jako element składowy zamocowań stałych, podparć ślizgowych, kulkowych oraz sprężynowych pionowych rurociągów energetycznych. Projektanci przewidzieli możliwość stosowania stóp dla rurociągów o średnicach zewnętrznych Dz od 76,1 mm do 508,0 mm i maksymalnej temperatury czynnika do 573K /300ºC/

Stopy skręcane pionowe

KER-75/8.67

Stopy skręcane pionowe wykorzystywane są jako element składowy zamocowań stałych podparć ślizgowych, kulkowych oraz sprężynowych pionowych rurociągów energetycznych. Projektanci przewidzieli możliwość stosowania stóp dla rurociągów o średnicach zewnętrznych Dz od 76,1 mm do 508,0 mm i maksymalnej temperatury czynnika do 823K /550ºC/